190 E 100 S Pleasant Grove, UT 84062
190 E 100 S Pleasant Grove, UT 84062
190 E 100 S Pleasant Grove, UT 84062
190 E 100 S Pleasant Grove, UT 84062
190 E 100 S Pleasant Grove, UT 84062
190 E 100 S Pleasant Grove, UT 84062

190 E 100 S Pleasant Grove, UT 84062

For Sale$215,000
5,227 sqft
0.12 acres

PROPERTY DETAILS

About This Property

This land / lot for sale at 190 E 100 S Pleasant Grove, UT 84062 has been listed at $215,000 and has been on the market for 49 days.

Full Description

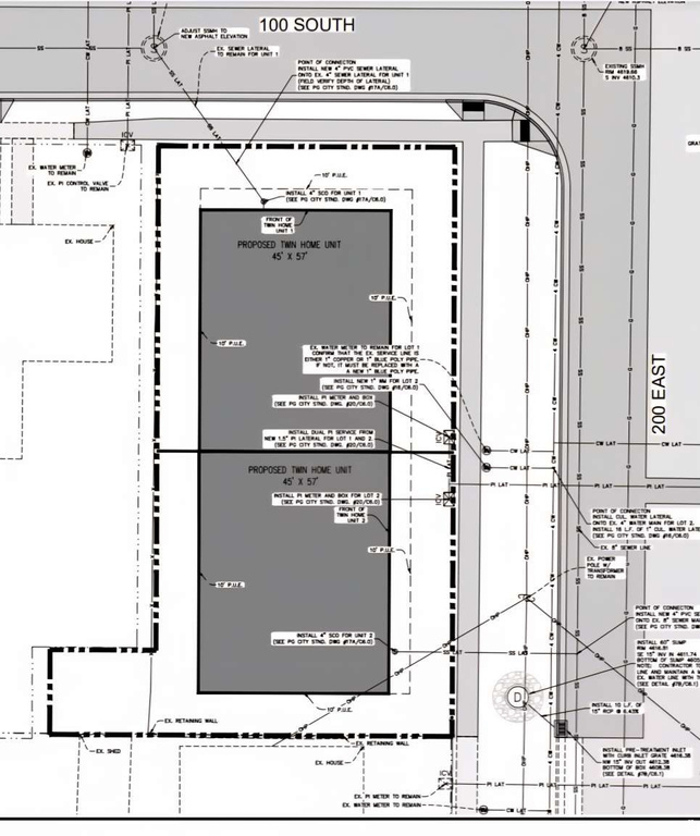
Build downtown in a gentrified neighborhood. Walking distance to Library, Rec Center, City Pool, PG high school, AND quick to the freeway. All survey work, percolation testing, and civil engineering is complete and approved by the City. Road improvements, sidewalk and gutters, city road inspections and stub-ins are included in this price. Building plans for (2) 3400sq ft homes with basement Mother-in-law units are included in the price. All you need is a building permit and you can build!

Property Highlights

  • Walking distance to Library, Rec Center, City Pool, PG high school, AND quick to the freeway. .
  • Building plans for (2) 3400sq ft homes with basement Mother-in-law units are included in the price. .
  • Build downtown in a gentrified neighborhood. .
  • All survey work, percolation testing, and civil engineering is complete and approved by the City. .

The land / lot for sale at 190 E 100 S Pleasant Grove, UT 84062 has been listed at $215,000 and has been on the market for 49 days.

Build downtown in a gentrified neighborhood. Walking distance to Library, Rec Center, City Pool, PG high school, AND quick to the freeway. All survey work, percolation testing, and civil engineering is complete and approved by the City. Road improvements, sidewalk and gutters, city road inspections and stub-ins are included in this price. Building plans for (2) 3400sq ft homes with basement Mother-in-law units are included in the price. All you need is a building permit and you can build!


Let me assist you on purchasing a house and get a FREE home Inspection!

General Information

  • Price

    $215,000   

  • Days on Market

    49

  • Area

  • House Size

    5227 Sq Ft

  • Address       

    190 E 100 S Pleasant Grove, UT 84062

  • Listed By   

    Congress Realty Inc

  • HOA

    NO

  • Lot Size

    0.12

  • MLS

    2141965

  • Status

    Active

  • City

    Pleasant Grove

  • Term Of Sale

    Cash,Conventional

Inclusions

  • Additional Land Available
  • Corner Lot
  • Sidewalks
  • Terrain: Grad Slope
  • View: Mountain
  • Gas: Stubbed

Garage and Parking

  • Garage Type: No
  • Garage Spaces:
  • Carport: No

Price History

Mar 09, 2026

$215,000

Just Listed





Other Property Info

  • Area:
  • Zoning: Multi-Family
  • State: UT
  • County: Utah
  • This listing is courtesy of:: Jared English Congress Realty Inc.

Utilities

  • Gas: Stubbed


Based on information from UtahRealEstate.com as of 2026-03-09 13:33:25. All data, including all measurements and calculations of area, is obtained from various sources and has not been, and will not be, verified by broker or the MLS. All information should be independently reviewed and verified for accuracy. Properties may or may not be listed by the office/agent presenting the information. IDX information is provided exclusively for consumers’ personal, non-commercial use, and may not be used for any purpose other than to identify prospective properties consumers may be interested in purchasing.

Housing Act and Utah Fair Housing Act, which Acts make it illegal to make or publish any advertisement that indicates any preference, limitation, or discrimination based on race, color, religion, sex, handicap, family status, or national origin.

Best Utah Real Estate Mobile App
MLS at your fingertips
Real-time updates
Listing Alerts
Interactive Map
Save your searches

Best Utah Real Estate

Your trusted MLS search companion

Accurate Data - Direct MLS feed for real-time listings
Privacy First - We never sell your personal data
Personalized - Custom alerts for your dream home
Easy to Use - Intuitive design for all users